SAUNA

eave xl

Your Dream Sauna, Ready in Just 8-10 Weeks.

Modern tiny house with black exterior and wooden accents, situated in a lush green forest, featuring a large window and an outdoor shower area.

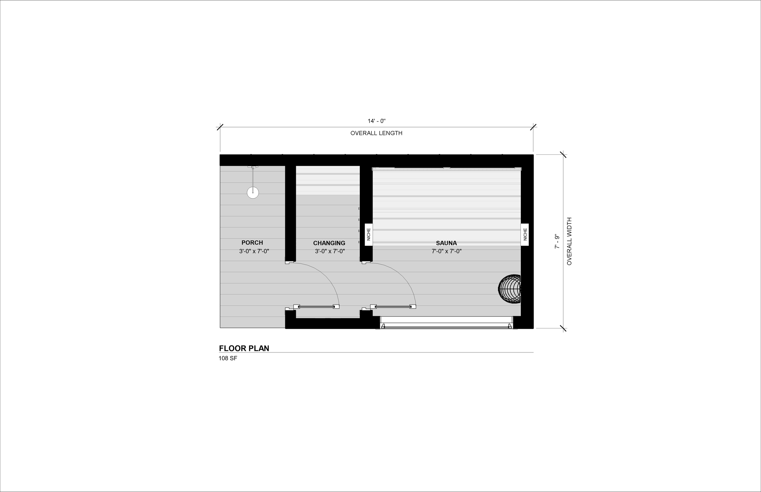
108 sq ft
$48,000

The Eave XL Sauna is defined by its strong architectural profile and refined, sleek black wood, with clean lines and warm surfaces that feel both modern and timeless. Designed as a wood-fired or electric sauna for daily ritual and restoration, its interior creates a calm, immersive environment focused on heat, light, and stillness. Built in the USA with durable, high-quality materials and delivered ready for use, the Eave XL Sauna balances performance with intentional design. Whether positioned as a standalone retreat or paired with a Field+Fold cabin, it offers a grounded, visually striking approach to wellness no matter where it is installed.

EVERY SAUNA

feels like a getaway

nature meets luxury design

Interior of a wooden sauna with a window overlooking a green outdoor landscape, and a heater with stones inside.
Decorative Line

electric heater

Clean, efficient heat source with consistent warmth and effortless control for a modern sauna experience.

A small wood-burning stove with a metal door open, showing flames and burning firewood inside, with metal shelves above.
Decorative Line

wood-burning heater

A traditional sauna experience with soft, radiant heat and an authentic, slow-burning warmth.

Three glowing neon rings on a wooden surface with wooden slats on the wall behind.
Decorative Line

led sauna strip light

Soft, ambient lighting that enhances the atmosphere, creating a warm and calming glow throughout the space.

Close-up of a black rainfall shower head mounted to a wall with wood paneling.
Decorative Line

cold shower

Designed to awaken the senses and refresh the body, offering a crisp contrast that invigorates and restores.

 Floor Plans and Elevations

FINISHES & ADD-ONS

Explore sauna finishes and add-ons to shape your experience. From warm wood interiors to heater options and exterior materials, every element is selected for performance, comfort, and timeless design.